Steinheimer Straße 11
Steinheimer Straße
Lade Kartenmaterial...
Offenbach, Stadt und Landkreis
Seligenstadt
  • Steinheimer Straße 11
Flur: 1
Flurstück: 244

Teil der Gesamtanlage:
Altstadt mit Freiheitsplatz

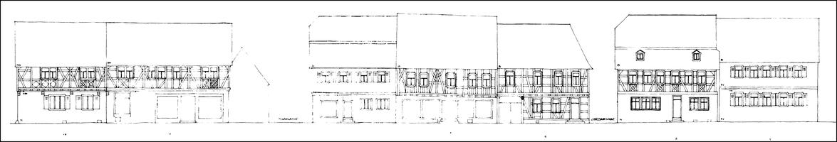
Langgestreckter Traufenbau auf massivem, neu verändertem Erdgeschoss; Baueinheit mit dem 1697 entstandenen Haus Stadtmühlgasse 1. In der Figuration ähnliches Fachwerk, jedoch Mannfiguren ohne Gegenstreben, sparsamerer Brüstungsschmuck - Andreaskreuz, durchkreuzte Raute. Die Giebelfassade zur erweiterten Einmündung Schafgasse setzt einen städtebaulichen Akzent in der geschlossenen Bebauung. Kulturdenkmal aus künstlerischen und städtebaulichen Gründen.


Als Kulturdenkmal nach § 2 Absatz 1 Hessisches Denkmalschutzgesetz aus künstlerischen und städtebaulichen Gründen in das Denkmalverzeichnis des Landes Hessen eingetragen.

Legende:

Kulturdenkmal nach § 2 Abs. 1 HDSchG
Kulturdenkmal (Gesamtanlage) nach § 2 Abs. 3 HDSchG
Kulturdenkmal (Grünfläche) nach §2 Abs. 1 oder § 2 Abs. 3 HDSchG
Kulturdenkmal (Wasserfläche) nach §2 Abs. 1 oder § 2 Abs. 3 HDSchG
Weitere Symbole für Kulturdenkmäler nach § 2 Abs. 1 HDSchG:
Wege-, Flur- und Friedhofskreuz, Grabstein
Jüdischer Friedhof
Kleindenkmal, Bildstock
Grenzstein
Keller bzw. unterirdisches Objekt
Baum
Planelemente auswählen
Zeigen Sie mit der Hand auf Markierungen im Plan, erhalten Sie ein Vorschaubild und per Mausklick die Objektbeschreibung.
Kartenansicht
Wählen Sie zwischen zwischen Alkis- und Luftbildansicht. Ebenfalls können Sie die Kartenbeschriftung ein- und ausblenden.
Zoomen
Zoomen Sie stufenweise mit einem Mausklick auf die Lupen oder bewegen Sie den Mauszeiger auf den Planausschnitt und verwenden Sie das Scrollrad ihrer Maus.
Zoom per Mausrad
Über diesen Button können Sie einstellen, ob Sie das Zoomen in der Karte per Scrollrad Ihrer Maus erlauben möchten oder nicht.
Vollbildmodus
Betätigen Sie diesen Button um die Karte im Vollbildmodus zu betrachten. Über den selben Button oder durch Klicken der "Esc"-Taste können Sie den Vollbildmodus wieder verlassen.
Ausgangsobjekt anzeigen
Über diesen Button erreichen Sie, dass in der Karte das Ausgangsobjekt angezeigt wird. Bei dem Ausgangsobjekt handelt es sich um die Objekte, die zu dem entsprechende Straßeneintrag gehören.
Abstand messen
Mit Hilfe dieses Tools können Sie die Distanz zwischen zwei oder mehreren Punkten berechnen. Hierbei wird eine Linie gezeichnet, bei der die entsprechende Gesamtlänge angezeigt wird. Weitere Anweisungen zur Benutzung werden nach betätigen des Buttons angezeigt.
Fläche berechnen
Dieses Tool ermöglicht es Ihnen eine Fläche zu zeichnen und den Flächeninhalt in m² zu berechnen. Um eine Fläche zu erzeugen, müssen mindestens 3 Punkte gesetzt werden. Die Fläche wird durch den Klick auf den Ausgangspunkt (1. Punkt) geschlossen und der Flächeninhalt anschließend berechnet.